| Prestataire | HIGH PARK SAS |
| Utilisation | Les cookies essentiels permettent des fonctions de base et sont nécessaires au bon fonctionnement du site Web. |
| Politique de protection des données | /fr/mentions-legales |
| Noms | PHPSESSID, csrf_contao_csrf_token, csrf_https-contao_csrf_token |
| Durée | À la fin de la session du browser. |
Victoria One / Melbourne, Australie / Multiparker 740
WÖHR Multiparker 740 dans la Skytower Victoria One - parking peu encombrant dans la plus haute tour résidentielle de Melbourne.
Architecte: Elenberg Fraser Architects
Système de parking automobile WÖHR Multiparker 740
Parking peu encombrant dans la plus haute tour résidentielle de Melbourne
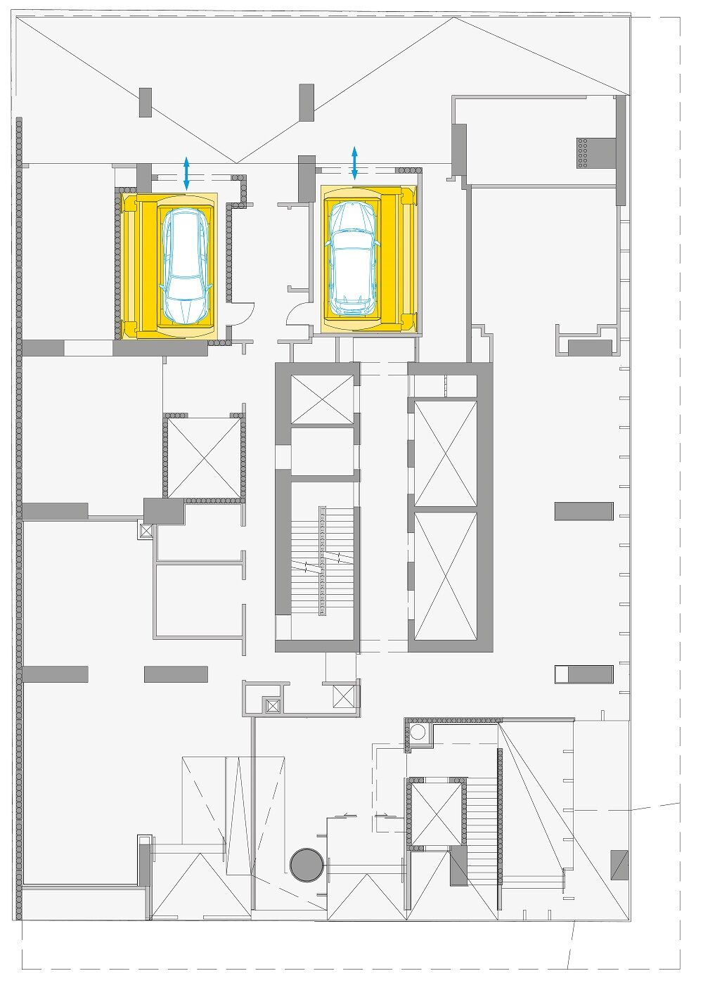
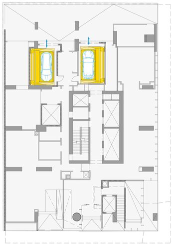
Le problème de stationnement au milieu de la ville populaire est élégamment résolu par un système de stationnement automatique de WÖHR. Le Multiparker 740 offre aux résidents de la tour résidentielle 163 places de stationnement sur 11 niveaux de stationnement hors sol – empilés les uns à côté des autres et les uns sur les autres pour économiser de l'espace - entièrement automatisées.
L’immeuble le plus haut et le sixième plus haut bâtiment de la ville a été conçu par le cabinet d'architecture Elenberg Fraser, qui a déjà construit plusieurs gratte-ciel dans la capitale de l'État australien de Victoria, à laquelle la Skytower doit son nom. La construction a commencé en 2014 et représente les conceptions sculpturales et écoénergétiques avec lesquelles les architectes se sont fait un nom. La façade séduit par sa structure en forme de nervure qui assure une ventilation et une exposition équilibrées ainsi qu’une consommation d’énergie réduite. Les matériaux utilisés sont inspirés de la végétation environnante et des éléments terre, roche et eau.
La particularité de Skytower : notre système de stationnement avec deux zones de transfert dans le plan d’entrée et de sortie atteint un débit de 30 à 47 voitures par heure. Le Multiparker 740 empile, dans deux zones de stockage superposées, des véhicules dont la hauteur peut atteindre 160 ou 200 cm, sur un total de 11 niveaux. La hauteur totale de la zone de stockage est d’environ 25 mètres et commence à environ 12 mètres à partir du niveau d’entrée. Le processus d’entrée et de sortie est commandé par une puce RFID sur le tableau de commande, à côté de la zone de transfert.
SPÉCIFICATIONS DU PROJET:
- WÖHR Multiparker 740
- 2 zones de transfert avec dispositif rotatif intégré
- 11 niveaux de stationnement
- Fonctionnement via puce RFID
- Longueur 5,25 m
- Largeur 2,20 m
- Hauteur 2,00 m
- Surface de stationnement totale env. 450 m2
- Surface par place de parking env. 2,8 m2
- Capacité de stationnement 30 à 47 véhicules/h